MENU

豊岡市日高町江原|一戸建て

			
価格
380万円
中古戸建
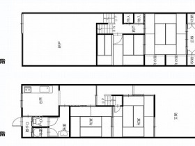
間取
7DK
  • (外観)
  • (間取)
(外観)
(間取)
所在地 兵庫県豊岡市日高町江原
交通 JR山陰本線江原駅
築年月 面積
バルコニー 向き
建物階数 地上2階  部屋階数
部屋/区画番号 総戸/区画数
建物構造 木造
敷地全体面積 延べ床面積 96.69m²
間取内容
駐車場 無  取引態様 仲介
引渡/入居時期 相談 現況 空家
地目 宅地 用途地域 準工業
都市計画 非線引き区域 地勢 平坦
土地面積 103.61m² 土地面積計測方式 公簿
建ぺい率 70% 容積率 200%
土地権利 所有権 接道状況 角地
接道方向1 接道間口1 5.4m
接道種別1 公道 接道幅員1 7.5m
接道方向2 接道間口2 18.9m
接道種別2 公道 接道幅員2 18.9m
国土法届出 不要
周辺環境 日高小学校 日高東中学校
設備・条件 プロパンガス 公営水道 排水下水 ◇上記建物面積は固定資産税課税明細書より記載。
URL https://estate.cres.jp/sale/detail.php?id=280005-1488
物件番号 cres-1488

不動産業者情報

業者名
株式会社クレス ピタットハウス豊岡店
住所
〒668-0027 兵庫県豊岡市若松町6番35号
電話番号
0796-29-2453
FAX番号
0796-29-2456
営業時間
AM10:00~PM6:00
定休日
水曜日定休、お盆、年末年始
宅建番号
兵庫県知事免許(8)第650054号

この物件に関するお問い合わせ

株式会社クレス ピタットハウス豊岡店からご連絡差し上げます。お気軽にお問い合わせください。

お名前【必須】
お客様電話番号
メールアドレス【必須】
お問い合わせ内容

個人情報の取り扱いについて

  • 予約フォームに記載された個人情報は、豊岡市が登録・管理し、就職支援に関するサービスの提供や、利用者に有益と思われる情報を提供するため、また各種分析等の集計のみに利用されます。
  • 利用目的の実施に必要な範囲内で、業務委託先に預託する場合があります。
    本人からのお申出があった場合には、個人情報保護法に基づく、開示、訂正、不正な利用・取得・第三者提供時等の利用停止等行います。
    なお、法令に違反する行為の調査に関わる情報や、その他法令で定められている「個人情報の存否」が明らかになると本人又は第三者の生命、身体又は財産に危害が及ぶおそれがある場合、又は公益その他の利益が害される等に該当する個人情報については、開示、訂正、利用停止等の対象になりません。
  • 管理する個人情報は、登録取り消しに際し、又はその他お申出があった場合でも、本人及び第三者に対し、いかなる媒体によっても返却する義務を負いません。

この物件を見た人にオススメの記事

しごと情報

住まいをエリアから探す
物件検索
ご希望の種別を選択して下さい
以下ご希望の条件を選択して物件検索ボタンを押して下さい
駅選択

市区選択

賃料
価格
駅歩分
築年数
面積
Fudousan Plugin Ver.1.7.7