JR豊岡駅徒歩16分の街中かつ、ゆとりある敷地の広々6DK物件
便利な立地条件に加え、
\なんと敷地内に2階建て3Kの別邸つきなんです/
(離れにはキッチン、トイレ、洗面台あり)
広々とした立派な和室や広縁など、上質な造りはもちろん、生活動線も整った魅力ある本宅に加え、離れを備えたこちらの住まい、
二世帯住宅としてはもちろん、趣味・仕事・来客用など幅広く活用できます!👑
買い物・銀行・豊岡駅が徒歩圏内にそろうため
暮らしの自由度が高く、家族のスタイルに合わせて住み継ぐ価値のある、希少な住まいです。
車も複数台駐車できるスペースがあります。
素敵な庭もあり、住まいの採光も抜群です。
🎈周辺環境🎈
スーパーマルワ (500m)
コープこうべコープデイズ豊岡 (750m)
ユニクロ豊岡店 (600m)
ファミリーマート豊岡若松町店 (650m)
豊岡郵便局 (450m)
豊岡総合高校 (300m)
駅前の利便性も重視したいけれど、ゆとりあるスペースも欲しい、ゆくゆくは二世帯住宅やお仕事スペースも考えたい・・・
そんな”良いとこどり”を叶える希少な物件✨✨
二世帯住宅や、趣味・事務所・アトリエ・ワークスペースとして、別邸つき住宅をお探しの方は、ぜひ、お気軽にお問合せください📞
弊社は、中古物件のリフォームも行っておりますので、ワンストップで対応が可能です👀
| 所在地 | 兵庫県豊岡市幸町 豊岡市幸町中古戸建住宅 |
|---|---|
| 交通 | JR山陰本線豊岡駅 徒歩1100m 徒歩16分 |
| 築年月 | 面積 | 181.09m² | |
|---|---|---|---|
| バルコニー | m² | 向き | 南 |
| 建物階数 | 地上2階 | 部屋階数 | 階 |
| 部屋/区画番号 | 総戸/区画数 | ||
| 建物構造 | 木造 | ||
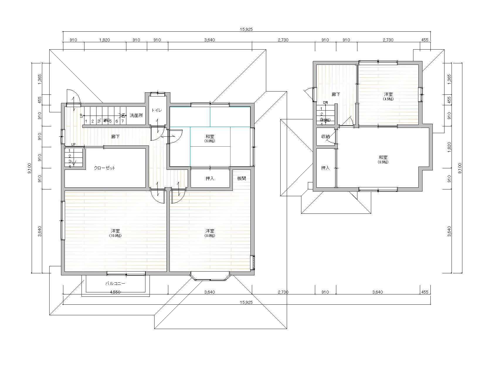
| 間取内容 | DK8畳 1階 1室 和室8畳 1階 2室 和室6畳 1階 1室 洋室10畳 2階 1室 洋室8畳 2階 1室 和室6畳 2階 1室 3K離れ(1階:1室和室7帖、2階:1室和室6.5帖、2階:1室洋室4.5帖) |
||
| 駐車場 | 空有 カーポートあり、複数台駐車可 | 取引態様 | |
| 引渡/入居時期 | 現況 | ||
| 地目 | 宅地 | 用途地域 | 第二種住居 |
| 都市計画 | 非線引き区域 | 地勢 | |
| 土地面積 | 408.71m² | 土地面積計測方式 | |
| 建ぺい率 | 60% | 容積率 | 200% |
| 土地権利 | 所有権 | 接道状況 | 一方 |
| 接道方向1 | 東 | 接道間口1 | m |
| 接道種別1 | 公道 | 接道幅員1 | 6.6m |
| 周辺環境 |
豊岡市立豊岡小学校 豊岡市立豊岡南中学校 スーパーマルワ (500m) コープこうべコープデイズ豊岡 (750m) ユニクロ豊岡店 (600m) ファミリーマート豊岡若松町店 (650m) 豊岡郵便局 (450m) 豊岡総合高校 (300m) |
||
| 設備・条件 | ガスコンロ 三口コンロ システムキッチン 給湯 独立洗面台 シャワー バス・トイレ別 温水洗浄便座 エアコン 室内洗濯機置き場 都市ガス 公営水道 井戸 排水下水 駐車場有 二世帯住宅 建物未登記・一部農地有農地転用要・井戸有・母屋2Fトイレ有・西側道路へ通路あり・白蟻保証期間R8.6.20迄有り・離れ(居宅)54.54㎡・離れにトイレ、洗面所、キッチンあり。 | ||
| URL | https://www.kounotori-f.com/sale/detail/281949-112 | ||
| 物件番号 | kounotorif5515-112 | ||
不動産業者情報
- 業者名
- 株式会社 こうのとり不動産
- 住所
- 〒668-0013 兵庫県豊岡市中陰638番地の1
- 電話番号
-
0796-26-5515
- FAX番号
- 0796-26-5505
- 営業時間
- 9:00~18:00
- 定休日
- 日曜日
- 宅建番号
- 兵庫県知事 (3) 第650104号
- 担当者
- 畠中



































