MENU

豊岡市日高町名色中古住宅~リノベ済1LDK+ロフト+屋根裏部屋。森に囲まれた静かな一邸
new

			
価格
1000万円
中古戸建
間取
1LDK

森に囲まれた、小さな1LDKのリゾートハウス🌳🏡

 

 

325㎡の敷地に、1LDK+ロフト+屋根裏部屋の立体的な間取り。

内装は、黒、白、木目、ニュアンスカラーを基調とする上品な印象。

 

2019~2021年にかけて玄関、水回り、LDK、ロフトを合計800万円かけて改装済み!

ロフトは光が入り明るく、

屋根裏部屋は、白い木目が印象的🌲

 

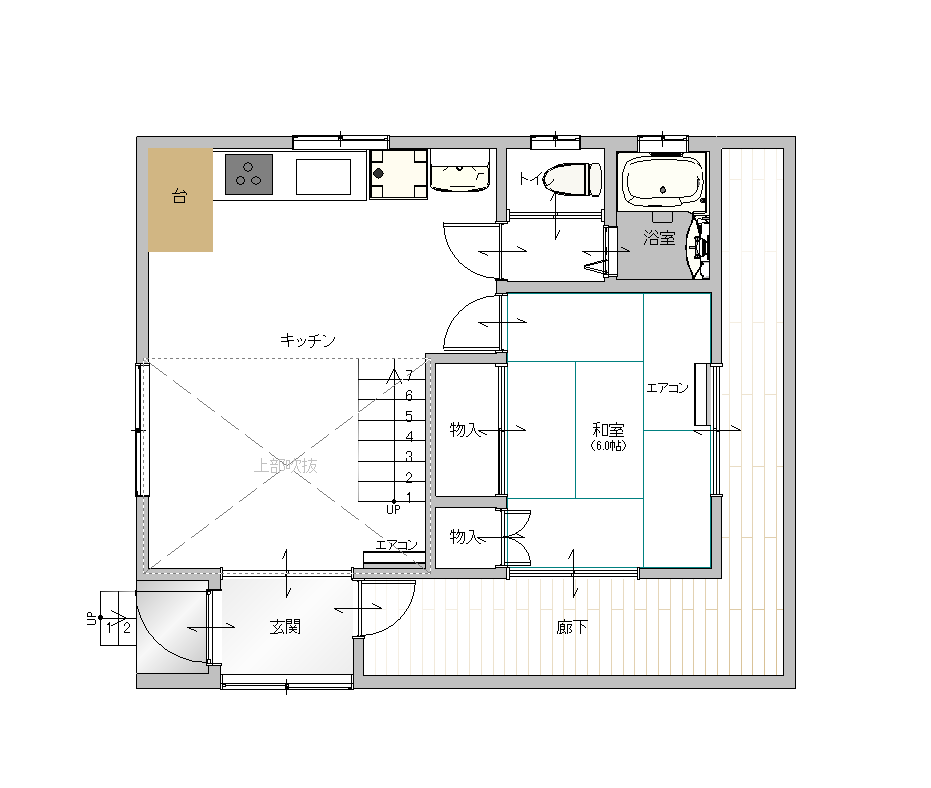
1階には6畳の和室もあり、季節の景色を楽しみながら落ち着いて過ごせます。

水回りはすべてリフォーム済みで、給湯器も交換済み🛀✨

モニター付きインターフォンもあるのでセキュリティもバッチリ。

 

 

カーポート2台分付きで、移住にも別荘にもぴったり🚗🏡

カーポート近くのきれいな桜の木も注目ポイントです🌸

 

  • 外観(外観)
  • 1F平面図(間取)
  • 2F平面図(間取)
  • (地図)
  • (居間)
  • 窓付きのキッチン(キッチン)
  • (キッチン)
  • 1F和室(内装)
  • 1F和室は収納があります
  • LDK奥にある洗面台(内装)
  • 水回りへの廊下(内装)
  • 窓付きのお風呂(風呂)
  • トイレ
  • 明るいロフト(内装)
  • ロフトから見た1F(内装)
  • ロフトから見た屋根裏部屋入口(内装)
  • 屋根裏部屋(内装)
  • LDK別角度から(内装)
  • 外廊下
  • 外廊下から見た屋根
  • カーポートと桜
  • 外観横から(外観)
  • 外観南側道路から(外観)
外観(外観)
1F平面図(間取)
2F平面図(間取)
(地図)
(居間)
窓付きのキッチン(キッチン)
(キッチン)
1F和室(内装)
1F和室は収納があります
LDK奥にある洗面台(内装)
水回りへの廊下(内装)
窓付きのお風呂(風呂)
トイレ
明るいロフト(内装)
ロフトから見た1F(内装)
ロフトから見た屋根裏部屋入口(内装)
屋根裏部屋(内装)
LDK別角度から(内装)
外廊下
外廊下から見た屋根
カーポートと桜
外観横から(外観)
外観南側道路から(外観)
所在地 兵庫県豊岡市日高町名色
日高町名色中古戸建住宅
交通 JR山陰本線江原駅
バス(名色駐車場 乗28分 停歩10分)
築年月 1979/07 面積
バルコニー 向き 南西
建物階数 地上2階  部屋階数
部屋/区画番号 総戸/区画数
建物構造 木造
敷地全体面積 延べ床面積 69.85m²
間取内容 LDK1階 1室  和室6畳 1階 1室  その他2階 1室  その他2階 1室  
2Fにロフトと屋根裏部屋あり
駐車場 空有 カーポート2台分あり 取引態様 仲介
引渡/入居時期 現況
地目 山林 用途地域 無指定
都市計画 非線引き区域 地勢
土地面積 325m² 土地面積計測方式 公簿
建ぺい率 60% 容積率 200%
土地権利 接道状況 一方
接道方向1 南西 接道間口1 16m
接道種別1 公道 接道幅員1 4m
周辺環境 清滝小学校 日高西中学校
清滝郵便局 (1947m)
ローソン豊岡神鍋高原店 (879m)
神鍋温泉 (2158m)
神鍋高原キャンプ場 (2085m)
きよたき認定こども園 (1999m)
設備・条件 リノベーション ガスコンロ 三口コンロ システムキッチン 食器洗い乾燥機 給湯 追い焚き 独立洗面台 バス専用 バス・トイレ別 温水洗浄便座 エアコン ロフト付き TVドアホン プロパンガス 公営水道 排水下水 駐車場有 フローリング 2019~2021年に玄関・水回り・給湯器・LDK内装・ロフトを合計約800万円かけてリフォーム済み
URL https://www.kounotori-f.com/sale/detail/281949-124
物件番号 kounotorif5515-124

不動産業者情報

業者名
株式会社 こうのとり不動産
住所
〒668-0013 兵庫県豊岡市中陰638番地の1
電話番号
0796-26-5515
FAX番号
0796-26-5505
営業時間
9:00~18:00
定休日
日曜日
宅建番号
兵庫県知事 (3) 第650104号
担当者
畠中

この物件に関するお問い合わせ

株式会社 こうのとり不動産からご連絡差し上げます。お気軽にお問い合わせください。

お名前【必須】
お客様電話番号
メールアドレス【必須】
お問い合わせ内容

個人情報の取り扱いについて

  • 予約フォームに記載された個人情報は、豊岡市が登録・管理し、就職支援に関するサービスの提供や、利用者に有益と思われる情報を提供するため、また各種分析等の集計のみに利用されます。
  • 利用目的の実施に必要な範囲内で、業務委託先に預託する場合があります。
    本人からのお申出があった場合には、個人情報保護法に基づく、開示、訂正、不正な利用・取得・第三者提供時等の利用停止等行います。
    なお、法令に違反する行為の調査に関わる情報や、その他法令で定められている「個人情報の存否」が明らかになると本人又は第三者の生命、身体又は財産に危害が及ぶおそれがある場合、又は公益その他の利益が害される等に該当する個人情報については、開示、訂正、利用停止等の対象になりません。
  • 管理する個人情報は、登録取り消しに際し、又はその他お申出があった場合でも、本人及び第三者に対し、いかなる媒体によっても返却する義務を負いません。

この物件を見た人にオススメの記事

しごと情報

住まいをエリアから探す
物件検索
ご希望の種別を選択して下さい
以下ご希望の条件を選択して物件検索ボタンを押して下さい
駅選択

市区選択

賃料
価格
駅歩分
築年数
面積
Fudousan Plugin Ver.1.7.7