駅まで約1km(徒歩13分)で、車4台も駐車できる便利な立地。
角地の開放感ある場所に建つ、2015年築の4LDK住宅です。
室内は木の質感と美しさが調和するナチュラルモダンの落ち着いた雰囲気。
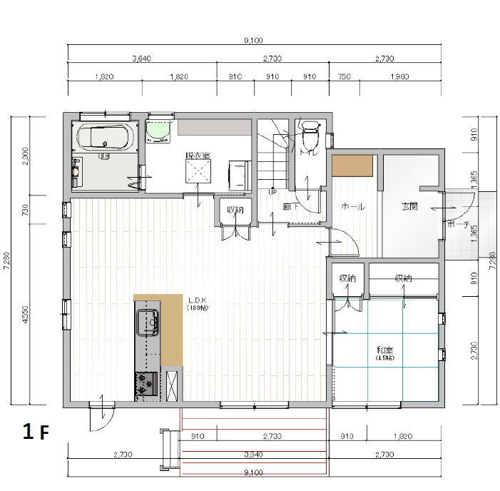
リビングはダークブラウンの梁と白い天井が印象的で、家族が自然と集まるあたたかい空間になっています。
リビング横には和室があり、趣味や、小さなお子さまの遊び、お昼寝スペースにもぴったりです。
キッチンには外へ出られるドアが付いており、ゴミ出しや庭でバーベキューをするときの動線がスムーズです。
▶玄関横の収納スペースは、目隠しもできるため、趣味グッズや外遊びグッズ置き場としても便利。
▶キッチンカウンター下にも収納があり、リビング収納と別に使えるこの収納もとても便利。
▶洗面室には大きなリネン収納、リビング収納、2階には4.2畳の棚付き納戸、主寝室にはウォークインクローゼットも。
「すっきり暮らしたい」「物が多くても整えたい」という方にぴったりの収納力です!
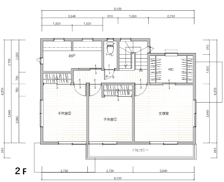
2階は主寝室+洋室2部屋の3部屋構成で、家族に合わせて使いやすい間取り。
バルコニーと2階トイレもあり、毎日の生活も快適です。
たっぷり収納と、築浅のきれいな住まいで、移住後の暮らしがすぐに整います。
| 所在地 | 兵庫県豊岡市上陰 豊岡市上陰中古戸建住宅 |
|---|---|
| 交通 | JR山陰本線豊岡駅 徒歩1000m 徒歩13分 |
| 築年月 | 2015/10/30 | 面積 | 119.24m² |
|---|---|---|---|
| バルコニー | m² | 向き | 東 |
| 建物階数 | 地上2階 | 部屋階数 | 2階 |
| 部屋/区画番号 | 総戸/区画数 | ||
| 建物構造 | 木造 | ||
| 敷地全体面積 | m² | 延べ床面積 | 119.24m² |
| 間取内容 | LDK19.1畳 1階 1室 和室4.5畳 1階 1室 洋室8畳 2階 1室 洋室6畳 2階 1室 洋室5.2畳 2階 1室 S4.2畳 2階 |
||
| 駐車場 | 空有 4台可 | 取引態様 | |
| 引渡/入居時期 | 期日指定 2026/07 下旬 | 現況 | 居住中 |
| 地目 | 宅地 | 用途地域 | 準工業 |
| 都市計画 | 非線引き区域 | 地勢 | 平坦 |
| 土地面積 | 223.61m² | 土地面積計測方式 | 公簿 |
| 建ぺい率 | 60% | 容積率 | 200% |
| 土地権利 | 所有権 | 接道状況 | 角地 |
| 接道方向1 | 北 | 接道間口1 | 11.98m |
| 接道種別1 | 接道幅員1 | 6.1m | |
| 接道方向2 | 東 | 接道間口2 | 11.26m |
| 接道種別2 | 接道幅員2 | 6.1m | |
| 周辺環境 |
五荘小学校 豊岡北中学校 ローソン豊岡下陰店 (953m) ミニフレッシュ豊岡下陰店 (837m) 但馬銀行問屋町支店 (672m) 豊岡下陰郵便局 (795m) ワッツウィズ豊岡ジョーシン店 (760m) |
||
| 設備・条件 | 角地 ガスコンロ 三口コンロ システムキッチン カウンターキッチン 食器洗い乾燥機 給湯 追い焚き 独立洗面台 シャワー 浴室乾燥機 バス・トイレ別 温水洗浄便座 エアコン W.INクローゼット 室内洗濯機置き場 TVドアホン 都市ガス 公営水道 駐車場有 バルコニー フローリング バリアフリー | ||
| URL | https://www.kounotori-f.com/sale/detail/281949-116 | ||
| 物件番号 | kounotorif5515-116 | ||
不動産業者情報
- 業者名
- 株式会社 こうのとり不動産
- 住所
- 〒668-0013 兵庫県豊岡市中陰638番地の1
- 電話番号
-
0796-26-5515
- FAX番号
- 0796-26-5505
- 営業時間
- 9:00~18:00
- 定休日
- 日曜日
- 宅建番号
- 兵庫県知事 (3) 第650104号
- 担当者
- 畠中























































