日本最古の書物、「古事記」・「日本書紀」にも名前が出てくる歴史ある出石町。
風情を感じる城下町にたたずむ古民家。
なんと建物裏にある約178㎡の土地と、さらに近隣には畑があるんです。
ガーデニング、畑づくり、ドッグラン、趣味のスペースなど、多用途に使えます👀
▶戸建リノベーションも、弊社リフォーム部門でワンストップでご相談いただけます✨🏡
| 所在地 | 兵庫県豊岡市出石町魚屋13 豊岡市出石町魚屋中古戸建住宅H +畑つき |
|---|---|
| 交通 | JR山陰本線豊岡駅 徒歩650m 徒歩9分 バス(沢庵寺口 乗29分 停歩9分) |
| 築年月 | 面積 | m² | |
|---|---|---|---|
| バルコニー | m² | 向き | |
| 建物階数 | 地上2階 | 部屋階数 | 階 |
| 部屋/区画番号 | 総戸/区画数 | ||
| 建物構造 | 木造 | ||
| 敷地全体面積 | m² | 延べ床面積 | 70.08m² |
| 建築面積 | 35.04m² | ||
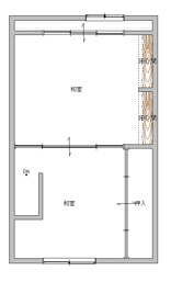
| 間取内容 | |||
| 駐車場 | 取引態様 | 仲介 | |
| 引渡/入居時期 | 現況 | 空家 | |
| 地目 | 宅地 | 用途地域 | 無指定 |
| 都市計画 | 非線引き区域 | 地勢 | 平坦 |
| 土地面積 | 280.95m² | 土地面積計測方式 | 公簿 |
| セットバック | 有 | セットバック量 | m² |
| 建ぺい率 | 70% | 容積率 | 200% |
| 土地権利 | 所有権 | 接道状況 | 角地 |
| 接道方向1 | 北 | 接道間口1 | 26m |
| 接道種別1 | 公道 | 接道幅員1 | 3.5m |
| 位置指定道路1 | 位置指定道路 | ||
| 接道方向2 | 東 | 接道間口2 | 5.3m |
| 接道種別2 | 公道 | 接道幅員2 | 7.1m |
| 位置指定道路2 | 位置指定道路 | ||
| 周辺環境 |
豊岡市立弘道小学校 豊岡市立出石中学校 |
||
| 設備・条件 | ペット可能 バス専用 トイレ専用 | ||
| URL | https://www.kounotori-f.com/sale/detail/281949-107 | ||
| 物件番号 | kounotorif5515- | ||
| 自社物 | 状態 | 売出中 | |
不動産業者情報
- 業者名
- 株式会社 こうのとり不動産
- 住所
- 〒668-0013 兵庫県豊岡市中陰638番地の1
- 電話番号
-
0796-26-5515
- FAX番号
- 0796-26-5505
- 営業時間
- 9:00~18:00
- 定休日
- 日曜日
- 宅建番号
- 兵庫県知事 (3) 第650104号
- 担当者
- 畠中

























