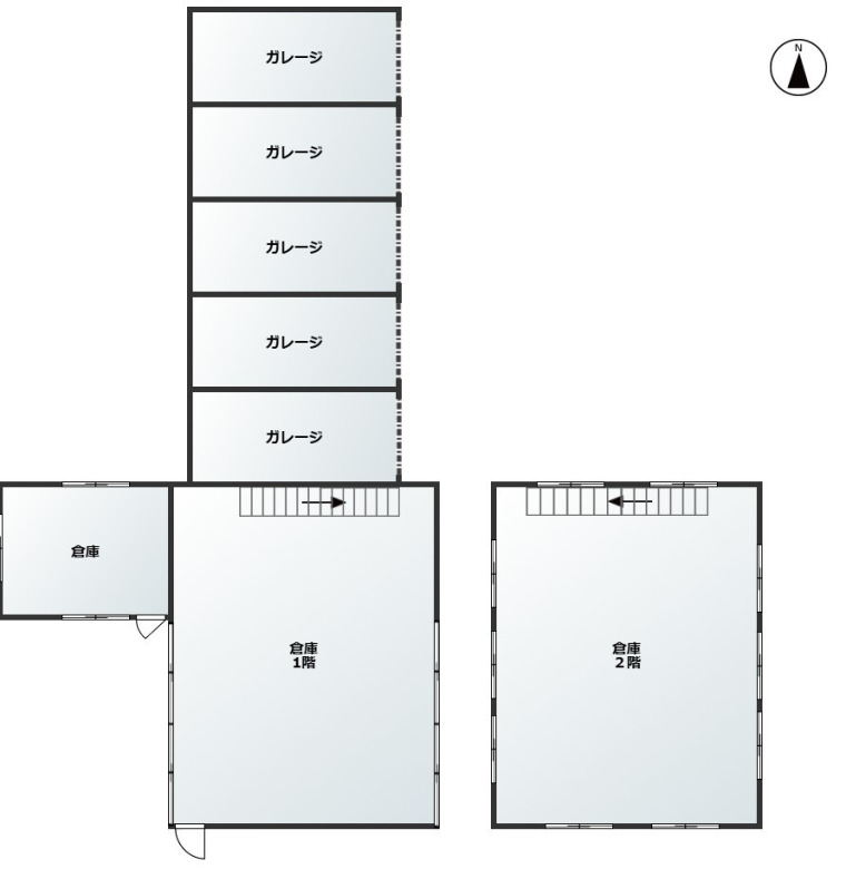
表示建物面積は公簿面積で有り、他に固定資産課税明細書に記載の未登記建物 倉庫148.50㎡ 専用住宅144.98㎡
工場・倉庫(ガレージ)72.90㎡ 専用住宅(増築?)73.36㎡が有ります。
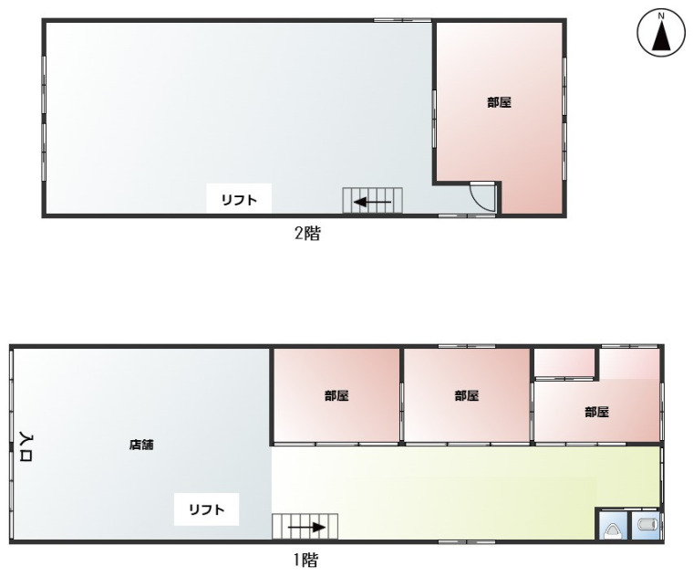
建物公簿面積、固定資産課税明細書の面積は現状と合致していない可能性があります。表示間取り図の他に倉庫、ガレージなどがあります。
| 所在地 | 兵庫県豊岡市塩津町 豊岡市塩津町185番12 |
|---|---|
| 交通 | JR山陰本線豊岡駅 徒歩30分 |
| 築年月 | 面積 | 641.48m² | |
|---|---|---|---|
| バルコニー | m² | 向き | |
| 建物階数 | 地上2階 | 部屋階数 | 2階 |
| 部屋/区画番号 | 総戸/区画数 | ||
| 建物構造 | 木造 | ||
| 間取内容 | 18LDDKK |
||
| 駐車場 | 空有 | 取引態様 | 仲介 |
| 引渡/入居時期 | 即時 | 現況 | 空家 |
| 地目 | 宅地 | 用途地域 | 第一種住居 |
| 都市計画 | 非線引き区域 | 地勢 | |
| 土地面積 | 909.22m² | 土地面積計測方式 | 公簿 |
| セットバック | 無 | セットバック量 | m² |
| 建ぺい率 | 60% | 容積率 | 200% |
| 土地権利 | 所有権 | 接道状況 | 一方 |
| 接道方向1 | 東 | 接道間口1 | 36.2m |
| 接道種別1 | 公道 | 接道幅員1 | 5.3m |
| 位置指定道路1 | |||
| 接道方向2 | 西 | 接道間口2 | 19.9m |
| 接道種別2 | 公道 | 接道幅員2 | 11m |
| 位置指定道路2 | |||
| 国土法届出 | 不要 | ||
| 周辺環境 |
八条小学校 豊岡南中学校 |
||
| 設備・条件 | 給湯 シャワー バス・トイレ別 エアコン 室内洗濯機置き場 都市ガス 公営水道 排水下水 | ||
| 物件番号 | alu0039-30327 | ||
| 自社物 | 自社物 | 状態 | 売出中 |
不動産業者情報
- 業者名
- アル不動産株式会社
- 住所
- 兵庫県豊岡市寿町4番9号
- 電話番号
-
0796-29-0039
- FAX番号
- 0796-29-0056
- 営業時間
- 10:00~19:00
- 定休日
- 木曜日
- 宅建番号
- 兵庫県知事(4)第650095号
- 担当者
- 小田雅也













































