環境が良好&水回りがきれいな中古住宅をお探しの方へ
広々10DKで、庭と家庭菜園のある暮らしはいかがですか✨
🔻280万円値下げいたしました。(2026年3月末)
【価格】1880万円(税込) → 1600万円(税込)
和の趣のある住居であり、水回りがピカピカなのも注目ポイント!
🎈アクセスも良好です🎈
▶ローソン豊岡福田店 (381m)
▶吉野家178号線豊岡店 (714m)
▶豊岡下陰郵便局 (1055m)
▶ミニフレッシュ豊岡下陰店 (1048m)
▶ローソン豊岡下陰店 (939m)
▶但馬銀行問屋町支店 (1001m)
| 所在地 | 兵庫県豊岡市福田1617-6 中古福田戸建住宅 |
|---|---|
| 交通 | JR山陰本線豊岡駅 徒歩2400m 徒歩33分 バス(福田 乗11分 停歩3分) |
| 築年月 | 1967/3/1 | 面積 | 142.87m² |
|---|---|---|---|
| バルコニー | m² | 向き | |
| 建物階数 | 地上2階 | 部屋階数 | 階 |
| 部屋/区画番号 | 総戸/区画数 | ||
| 建物構造 | 木造 | ||
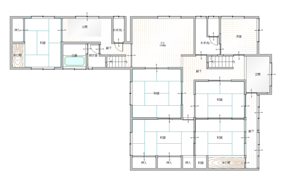
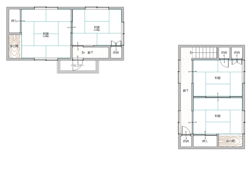
| 間取内容 | 和室6畳 1階 3室 和室7.5畳 1階 和室8畳 1階 洋室4.5畳 1階 DK9.5畳 1階 和室8畳 2階 和室6畳 2階 3室 |
||
| 駐車場 | 空有 | 取引態様 | |
| 引渡/入居時期 | 現況 | ||
| 地目 | 宅地 | 用途地域 | 第一種中高層住居専用 |
| 都市計画 | 非線引き区域 | 地勢 | 平坦 |
| 土地面積 | 815.58m² | 土地面積計測方式 | |
| 建ぺい率 | 60% | 容積率 | 200% |
| 土地権利 | 所有権 | 接道状況 | 一方 |
| 接道方向1 | 北東 | 接道間口1 | 16m |
| 接道種別1 | 公道 | 接道幅員1 | 4.0m |
| 接道方向2 | 南西 | 接道間口2 | 4m |
| 接道種別2 | 公道 | 接道幅員2 | 4.0m |
| 周辺環境 |
豊岡市立五荘小学校区 豊岡市立豊岡北中学校区 ・ローソン豊岡福田店 (381m) ・吉野家178号線豊岡店 (714m) ・豊岡下陰郵便局 (1055m) ・ミニフレッシュ豊岡下陰店 (1048m) ・ローソン豊岡下陰店 (939m) ・但馬銀行問屋町支店 (1001m) |
||
| 設備・条件 | 給湯 追い焚き 独立洗面台 シャワー バス・トイレ別 室内洗濯機置き場 駐車場有 | ||
| URL | https://www.kounotori-f.com/sale/detail/281949-97 | ||
| 物件番号 | kounotorif5515- | ||
| 自社物 | 自社物 | 状態 | 売出中 |
不動産業者情報
- 業者名
- 株式会社 こうのとり不動産
- 住所
- 〒668-0013 兵庫県豊岡市中陰638番地の1
- 電話番号
-
0796-26-5515
- FAX番号
- 0796-26-5505
- 営業時間
- 9:00~18:00
- 定休日
- 日曜日
- 宅建番号
- 兵庫県知事 (3) 第650104号
- 担当者
- 畠中































